| 価格 | 2,998万円 ![]() |
||||
|---|---|---|---|---|---|
| 所在地 | 福岡県遠賀郡岡垣町鍋田1丁目
鍋田周辺の一戸建てを探す |
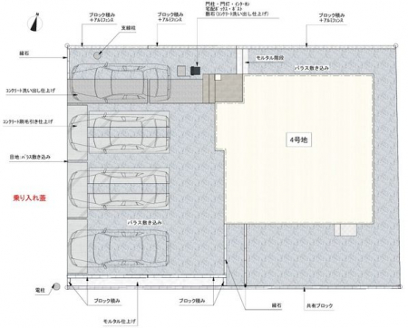
土地面積 | 197.39m² (59.71坪) | 建物面積 | 109.1m2 |
| 築年月 | 新築 2025年築 | 間取り | 4LDK (LDK16/洋室5.2/洋室8/洋室7/洋室7) | ||
| 交通 |
JR鹿児島本線 海老津/徒歩25分
JR鹿児島本線 遠賀川/徒歩48分 |
||||
電話をかける(携帯・PHS可)
0120-888-466
「ホームページを見た」とお伝え下さい。
お問い合わせ番号をお伝えください
RHS-B01243-001719
| 特徴 |
|
|---|---|
| セールスコメント |
◆◇ 『物件おすすめpoint』 ◇◆ ☆小・中学校まで徒歩10分圏内♪ ☆家計に優しいオール電化♪ ☆LDKは16帖と広々開放的♪4LDK♪ ☆2階居室は全て2面採光♪7帖以上のゆとり空間♪
≪住宅ローン相談会≫ |
| 採光面 | 東南 | 構造/階数 | 木造/地上2階建 |
|---|---|---|---|
| 建ぺい率 | 40(%) | 容積率 | 60(%) |
| 駐車場 | 有 | 現況/引渡し | 空家/相談 |
| 土地権利 | 所有権 | 私道負担面積 | - |
| 接道状況 | 接道: 東南 公道 道路幅: 4.1m | 用途地域 | 第一種低層住居専用地域
|
| セットバック | - | 法令上の制限 | - |
| 地目 | 宅地 | 地勢 | |
| 建築確認番号 | 都市計画 | ||
| 小学校区 | () |
中学校区 | () |
| 取引態様 | 仲介 | ||
| 情報更新日 | 2026年05月12日 | 次回更新日 | 2026年05月26日 |
電話をかける(携帯・PHS可)
0120-888-466
「ホームページを見た」とお伝え下さい。
お問い合わせ番号をお伝えください
RHS-B01243-001719
| 年利率 | % |
||
|---|---|---|---|
| ボーナス払い | 返済年数 | ||
| 頭金 | 直接入力する | 万円 | |

毎月のご返済額 |
ボーナス(×年2回) |
物件価格2,998万円 |
電話でお問い合わせ
リアルティストア 福岡東店
|
電話をかける 0120-888-466 ※「ホームページを見た」とお伝えください。 |
お問い合わせ番号をお伝えください RHS-B01243-001719 |
|---|
私たちは”不動産のなんでもストア”として、お客様ひとりひとりにオーダーメイドのおもてなしをご提案いたします。

\5/16(土)〜5/17(日)現地説明会開催中♪平日のご見学も大歓迎♪/