| 価格 | 3,288万円 ![]() |
||||
|---|---|---|---|---|---|
| 所在地 | 熊本県熊本市西区田崎3丁目
田崎周辺の一戸建てを探す |
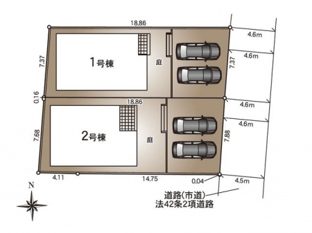
土地面積 | 138.69m² (41.95坪) | 建物面積 | 98.81m2 |
| 築年月 | 新築 2026年築 | 間取り | 4SLDK (LDK17/和室5/洋室7.5/洋室6.1/洋室5) | ||
| 交通 |
- -/-
|
||||
電話をかける(携帯・PHS可)
0120-306-301
「ホームページを見た」とお伝え下さい。
お問い合わせ番号をお伝えください
RHS-B00168-004557
| 特徴 |
|
|---|---|
| セールスコメント |
◇お気軽にお問い合わせください◇ ☆イオンタウン田崎までお車約3分♪ ☆防犯カメラ完備でセキュリティ面も安心♪ ☆急な雨でも安心なインナーバルコニー♪ ☆来客時に重宝する和室有♪ ☆浄水器や浴室暖房乾燥機等、設備充実♪ \当社ネット掲載以外の物件もご紹介可能です/ Q.気になるお家がたくさんある! →A.すべての物件資料を一括してご提供します♪ Q.住宅ローンはどこの銀行で借りたらいいの? →A.諸条件をお伺いし、お客様にとって最適な金融機関をご提案します♪ Q.未公開情報を知りたい! →A.これから公開を予定している物件情報もご紹介します♪ お家探しからアフターサービス・フォローまで、ワンストップでリアルティストアがお手伝いします♪
≪住宅ローン相談会≫ |
| 採光面 | 南 | 構造/階数 | 木造/地上2階建 |
|---|---|---|---|
| 建ぺい率 | 60(%) | 容積率 | 200(%) |
| 駐車場 | - | 現況/引渡し | 空家/即時 |
| 土地権利 | 所有権 | 私道負担面積 | - |
| 接道状況 | 接道: 東 公道 道路幅: 4.5m | 用途地域 | 第二種中高層住居専用地域
|
| セットバック | - | 法令上の制限 | - |
| 地目 | 宅地 | 地勢 | |
| 建築確認番号 | 都市計画 | 市街化区域 | |
| 小学校区 | () |
中学校区 | 花陵中学校 (熊本市西区) この学区の他の物件を見る |
| 取引態様 | 仲介 | ||
| 情報更新日 | 2026年02月15日 | 次回更新日 | 2026年03月01日 |
電話をかける(携帯・PHS可)
0120-306-301
「ホームページを見た」とお伝え下さい。
お問い合わせ番号をお伝えください
RHS-B00168-004557
| 年利率 | % |
||
|---|---|---|---|
| ボーナス払い | 返済年数 | ||
| 頭金 | 直接入力する | 万円 | |

毎月のご返済額 |
ボーナス(×年2回) |
物件価格3,288万円 |
電話でお問い合わせ
リアルティストア 熊本店
|
電話をかける 0120-306-301 ※「ホームページを見た」とお伝えください。 |
お問い合わせ番号をお伝えください RHS-B00168-004557 |
|---|
私たちは”不動産のなんでもストア”として、お客様ひとりひとりにオーダーメイドのおもてなしをご提案いたします。

◇本日ご案内いたします◇
並列駐車2台可能♪小中学校徒歩圏内♪
LDK17帖♪広々とした4SLDKのお家♪
収納豊富♪収納に役立つ納戸完備♪